|
|
|
|
|
联系我们 |
 |
|
|
|
| 地址:江苏省泰州市姜堰区工业园区 |
联系人:翟忠祥 |
手机:0(13601473265) |
| 电话:0523-88895918 |
传真:0523-88233259 |
邮箱:jstggj888@163.com |
|
|
|
|
|
|
|
|
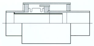
| 补偿器(膨胀节)系列--
无约束型波纹膨胀节
|
|


产品代号标记示例: (JYTD400-1.6/200-F) 表示公称通径Φ400mm,工作压力为1.6MPa,补偿量为200mm,碳钢法兰连接的无约束型膨胀节。如需要接管连接请标注J,若需法兰或接管为不锈钢材质则在F或J后加B。 使用说明: “无约束”是因以往的轴向型膨胀节对使用有较多约束条件得名的。它完全消除了以往轴向型膨胀节对导向支架间距的L1≤4D,L≤4D和L3的要求。我公司生产的无约束型膨胀节己实现了管架间距“无约束”的目标。无约束膨胀节不仅具有柱状稳定性,还具有自导向能力。所以它完全消除4D、14D、L3的约束,克服安装误差,体积小,安全可靠的特点,可以消除以往轴向型膨胀节易发生的扭弯和失稳等常见病,并对管道保温也带来了很大的方便。 无约束型膨胀节在固定支架间距的确定和固定支座推力计算和普通的轴向型膨胀节完全相同。为了使工程稳定可靠,无约束型膨胀节除要求靠近固定支架安装外,仍要求每个固定支架间距内设三个导向支架。 无约束型膨胀节可应用于管道的架空、地沟嘉设,也可应用于有补偿的直埋敷设,此时膨胀节处应设检查井或暗室。


|
 |
|
|
| 点击数:543 【打印此页】 【返回】 【关闭本窗口】 |
|
|